Situation:
Rick and Cathy Ross of Paramus New Jersey was a real estate developer whose wife made killer cups cakes that everyone said you should open a business and sell them. Rick studied hot concepts and identified Shake Shack in NY as one of the area’s hottest new Burger restaurant concepts in the business and he pursued a Bake & Burger Idea based on there menu.
Their Need:
The need was simple they needed to be restaurant”ized and coached into the strategies and systems that would drive an ideal business model for a bakery and burger concept. The overall goal was to bring Rick and Cathy’s vision to life. There idea was hot and they had the “A” location for there Boutique Quick Service Restaurant.
Primary Services Provided
- Menu Creation
- Design Direction
- Identity Development
- Recipe Development
- Sourcing and Specification of Raw Materials
- Developed Custom-Written Detailed Operations Manual
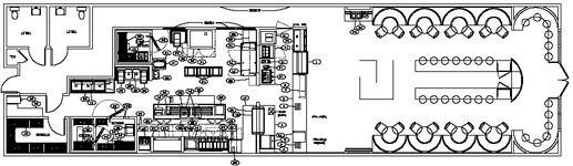
- Kitchen and restaurant Design Direction which included floor plan and equipment selection
- Directed the Training of Staff and opened the restaurant successfully
Results:
BUCU Burger is one the hottest concepts in the New Jersey Paramus area. With a complete Turn Key operations and facility design that functioned there success is realized with the high volume of sales they are experiencing.
Attachments:




